中古一戸建て 津市久居野口町
所在地
津市久居野口町
2,399万円
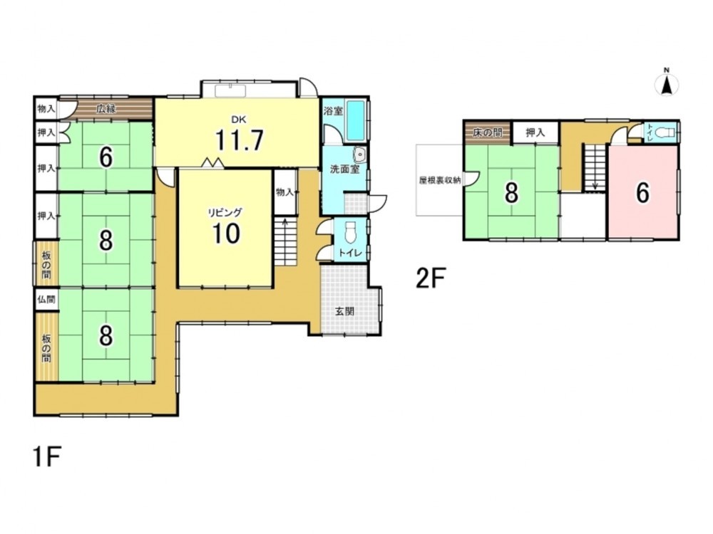
49.89坪
5LDK
物件概要
- 交通
-
近鉄名古屋線 久居駅 まで 徒歩13分
- 接道状況
- 南西側 公道3.2m
- 土地面積
- 386.77㎡ (116.99坪)
- 建物面積
- 164.93㎡ (49.89坪)
- 築年数
-
1984年
(昭和59)
9月
築41年 - 建ぺい率
- 60%
- 容積率
- 200%
- 土地権利
- 所有権
- 構造および階数
- 木造 地上2階建
- 小学校区
- 立成 ( 2000m )
- 中学校区
- 久居東 ( 900m )
- 私道負担
- 地目
- 宅地
- 現況
- 空
- 引渡時期
- 相談
- 駐車場
- 有 3台
- 上水道
- 公共
- 下水道
- 公共
- ガス
- プロパン個別
- 都市計画
- 市街化区域
- 用途地域
- 1種住居
- 設備・条件
- 駐車場2台分、トイレ2箇所、庭
- 備考
-
【リフォーム内容】
●外構工事
駐車場拡張、外壁塗装
●内装工事
システムキッチン交換、ユニットバス交換、温水洗浄便座トイレ交換、洗面化粧台交換、フローリング上張り、クロス張替え、畳表替え、建具交換、シューズボックス交換、給湯器交換、インターホン設置、火災警報器設置、照明LED交換 - 取引態様
- 仲介

